珠海
珠海
中山
澳门
|
旗下品牌
匡正装饰
装修案例
设计师
在线工地
新闻资讯
服务热线:
4000756557
首页
装修案例
设计师
在线工地
施工工艺
新闻资讯
关于我们
联系我们
简
/
繁
/
EN
免费报价
首页
装修案例
设计师
在线工地
施工工艺
新闻资讯
关于我们
联系我们
旗下品牌
匡正装饰
简
/
繁
/
EN
首页
>
在线工地
>
英国北方大学联合会
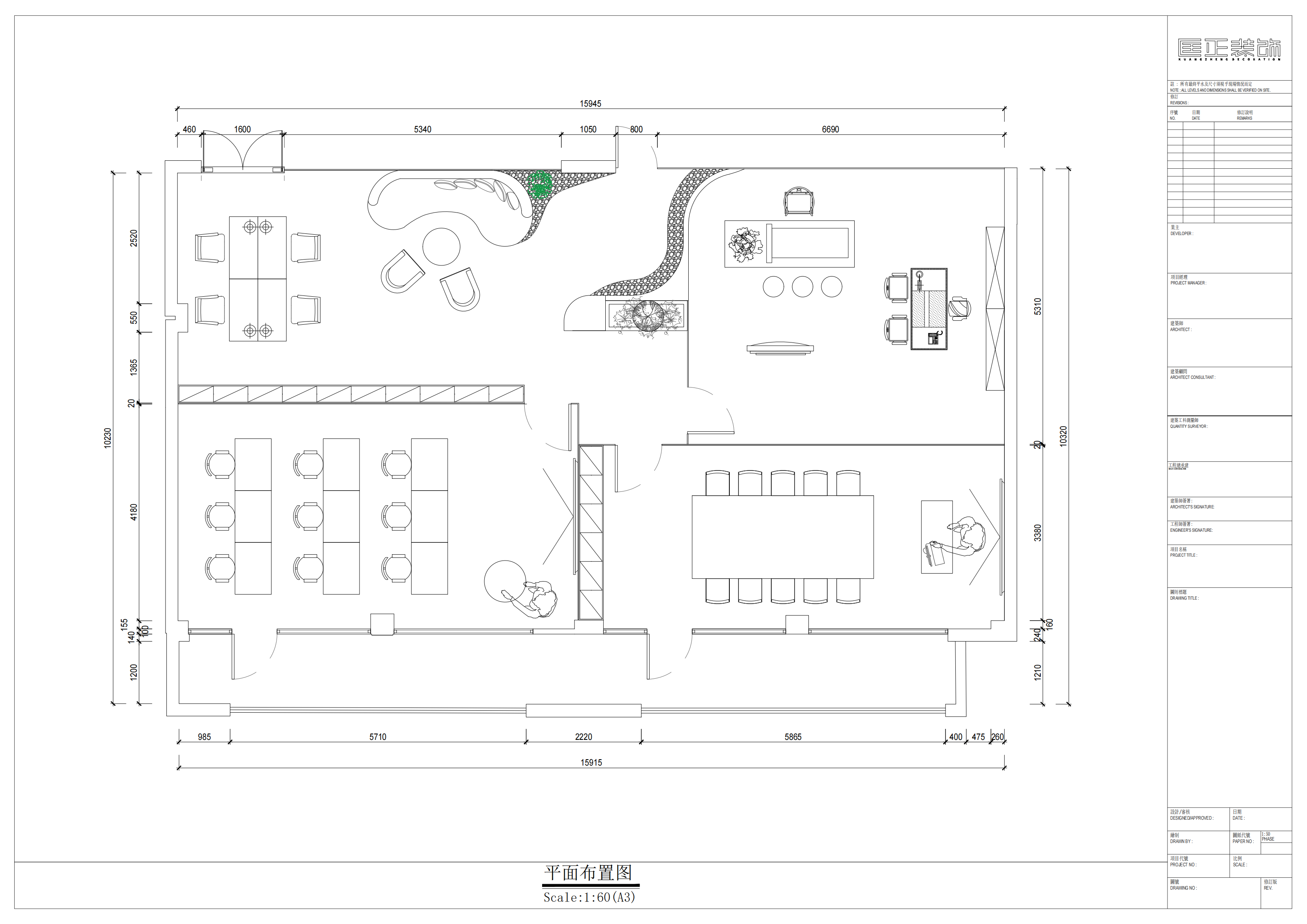
英国北方大学联合会-230㎡
我要预约
户型:
办公室
面积:
230㎡
楼盘名称:
金嘉创意谷
类型:
工装
开工日期:
2025.08.10
主案设计师:
装修动态
共
12
条
设计
开工
拆改
水电
泥木
防水
油漆
竣前
安装
验收
软装
竣工
我要预约
徐经理
项目经理
#验收
2025年08月25日
徐经理
项目经理
#软装
2025年08月25日
徐经理
项目经理
#竣工
2025年08月25日
徐经理
项目经理
#安装
2025年08月24日
徐经理
项目经理
#竣前
2025年08月23日
徐经理
项目经理
#油漆
2025年08月21日
徐经理
项目经理
#泥木
2025年08月19日
徐经理
项目经理
#防水
2025年08月19日
徐经理
项目经理
#水电
2025年08月13日
徐经理
项目经理
#开工
2025年08月10日
徐经理
项目经理
#拆改
2025年08月10日
徐经理
项目经理
#设计
2025年08月03日
快速链接
首页
关于我们
设计师
设计案例
新闻资讯
在线工地
店铺地址
珠海总店: 珠海市前山乐文路8号对白剧场一层A3
澳门旗舰店:澳门毕仕达大马路26号中福商业中心5楼F
中山旗舰店:中山市东区紫领东路11号
联系我们
官方微信号
官方抖音号
官方小红书
服务热线:
4000756557
珠海装修
Copyright ©2025 珠海匡正装饰设计有限公司 All Rights Reserved 版权所有
网站地图
粵ICP備2025422279號
微信客服
匡正装饰
一键报价
实景案例
4000756557
返回顶部
10秒估算,少花冤枉钱
装修要花多少钱?
今天已经有
5686
位获取了装修预算
选择所在的城市
北京市
天津市
河北省
山西省
内蒙古自治区
辽宁省
吉林省
黑龙江省
上海市
江苏省
浙江省
安徽省
福建省
江西省
山东省
河南省
湖北省
湖南省
广东省
广西壮族自治区
海南省
重庆市
四川省
贵州省
云南省
西藏自治区
陕西省
甘肃省
青海省
宁夏回族自治区
新疆维吾尔自治区
台湾省
香港特别行政区
澳门特别行政区
㎡
开始计算
为了您的权益,您的隐私将被严格保密
4000756557
开始
计算
装修费用明细
装修估价
¥
143301
材料费
¥
71652
人工费
¥
62960
设计费
¥
7988
管理费
¥
701
因材料品牌及工程量不同
具体报价以量房实测为准